19950190585
光伏玻璃星空房(旷野之星)

光伏玻璃星空房(旷野之星)

框架:全实木松木框架
墙体:光伏玻璃+low-E玻璃+中空玻璃+松木板
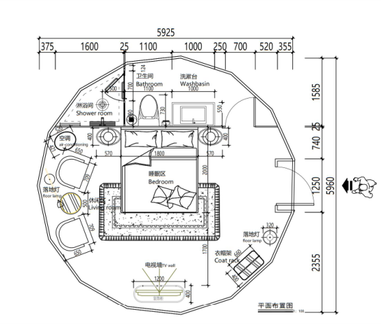
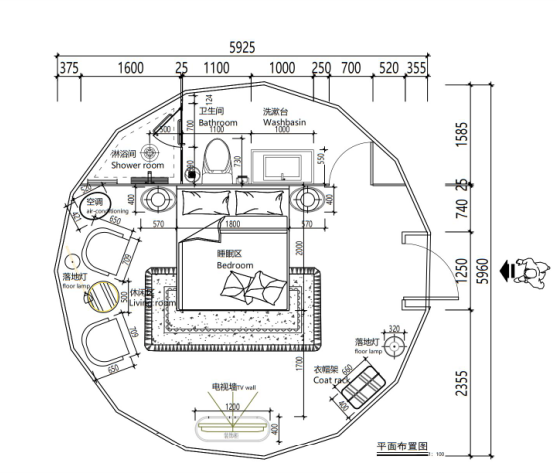
规格(直径):6m
套内面积:28㎡
投影面积:30㎡
抗风等级:10级以下

产品咨询
产品介绍

光伏玻璃星空房(旷野之星)

光伏玻璃星空房(旷野之星)

光伏玻璃星空房(旷野之星)

光伏玻璃星空房(旷野之星)

产品咨询